新築一戸建
4,480万円 〜 4,680万円<税込>
| 所在地 | 川崎市宮前区南野川2丁目 | ||
|---|---|---|---|
| 交通 | 東急田園都市線「鷺沼」駅 バス15分「和田八幡宮下」停歩1分 | ||
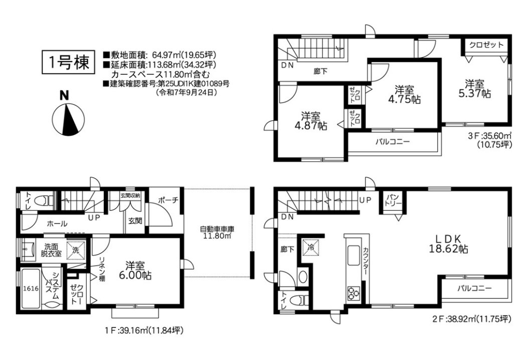
| 土地面積 | 64.97㎡〜64.98㎡ | 建物面積 | 110.95㎡〜113.68㎡ |
| 間取 | 4LDK | 築年月 | 2026年5月完成予定 |
トップページウィズリアルティおすすめ物件川崎市宮前区の物件詳細
4,480万円 〜 4,680万円<税込>
| 所在地 | 川崎市宮前区南野川2丁目 | ||
|---|---|---|---|
| 交通 | 東急田園都市線「鷺沼」駅 バス15分「和田八幡宮下」停歩1分 | ||
| 土地面積 | 64.97㎡〜64.98㎡ | 建物面積 | 110.95㎡〜113.68㎡ |
| 間取 | 4LDK | 築年月 | 2026年5月完成予定 |
ローンシミュレーション
価格4680万円、頭金0円、借入額4680万円
・ご紹介金融機関:SBI新生銀行
・借入可能額:販売価格の 100%以内
・返済期間:最長 50年 ※50年ローンの場合、金利+0.1%
・金利(変動金利):年 0.780%
基準金利:1.950%
金利優遇:▲1.270%
50年ローン加算:+0.1%
→ 実行金利:0.780%
・事務取扱手数料:借入金額 × 2.2%
・その他費用について
・金利は 2026年1月時点のものです
実際の金利・返済額は、審査結果やお申込み時期により異なる場合があります
物件概要
| 所在地 | 川崎市宮前区南野川2丁目 | ||
|---|---|---|---|
| 交通 | 東急田園都市線「鷺沼」駅 バス15分「和田八幡宮下」停歩1分 | ||
| 価格 | 4,480万円 〜 4,680万円<税込> | ||
| 物件名称 | 帰りたくなる家 南野川/全5棟 | 物件種別 | 新築一戸建 |
| 販売棟数 | 全5棟 今回販売5棟 | 土地面積 | 64.97㎡〜64.98㎡ |
| 建物面積 | 110.95㎡〜113.68㎡ | 間取 | 4LDK |
| 建物構造 | 木造 2階建 | 完成 | 2026年5月完成予定 |
| 権利形態 | 所有権 | 都市計画 | 市街化区域 |
| 地目 | 宅地 | 用途地域 | 第一種住居地域 |
| 建ぺい率 | 60% | 容積率 | 200% |
| 建築確認番号 | 第25UDI1K建01092号他 | 現況 | 建築中 |
| 駐車場 | 1台 | 引渡し時期 | 相談 |
| 取引態様 | 媒介 | 学区 | 南野川小学校 / 野川中学校 |
| 設備 | ・都市ガス | ||
アクセスマップ