マンション
3,580万円
| 所在地 | 川崎市高津区下作延3丁目4-33 | ||
|---|---|---|---|
| 交通 | 東急田園都市線「梶が谷」駅 徒歩12分 | ||
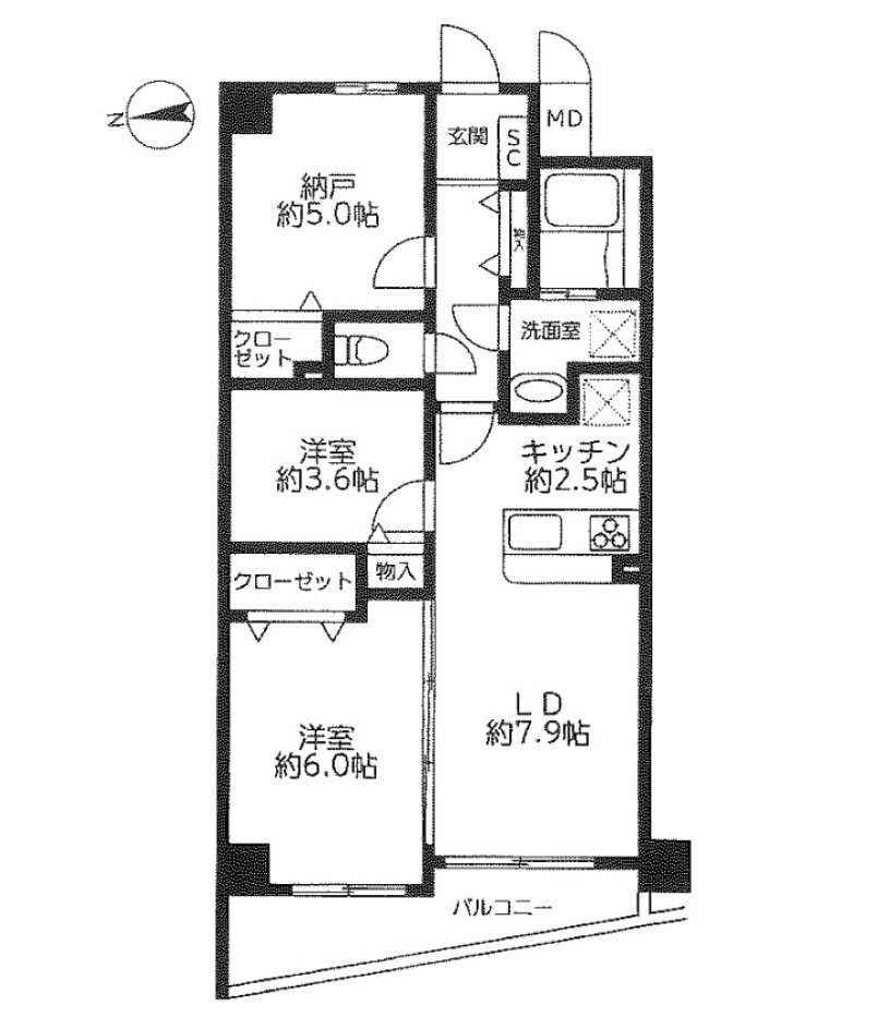
| 専有面積 | 57.29㎡ | 間取 | 2LDK+S |
| バルコニー | 5.57㎡ | 築年月 | — |
トップページウィズリアルティおすすめ物件川崎市高津区の物件詳細
3,580万円
| 所在地 | 川崎市高津区下作延3丁目4-33 | ||
|---|---|---|---|
| 交通 | 東急田園都市線「梶が谷」駅 徒歩12分 | ||
| 専有面積 | 57.29㎡ | 間取 | 2LDK+S |
| バルコニー | 5.57㎡ | 築年月 | — |
ローンシミュレーション
価格3580万円、頭金0円、借入額3580万円
・ご紹介金融機関:SBI新生銀行
・借入可能額:販売価格の 100%以内
・返済期間:最長 50年 ※50年ローンの場合、金利+0.1%
・金利(変動金利):年 0.780%
基準金利:1.950%
金利優遇:▲1.270%
50年ローン加算:+0.1%
→ 実行金利:0.780%
・事務取扱手数料:借入金額 × 2.2%
・その他費用について
・金利は 2026年1月時点のものです
実際の金利・返済額は、審査結果やお申込み時期により異なる場合があります
物件概要
| 所在地 | 川崎市高津区下作延3丁目4-33 | ||
|---|---|---|---|
| 交通1 | 東急田園都市線「梶が谷」駅 徒歩12分 | ||
| 交通2 | JR南武線「津田山」駅 徒歩16分 | ||
| 交通3 | 東急田園都市線「溝の口」駅 バス5分「下作住宅前」停歩7分 | ||
| 価格 | 3,580万円 | ||
| マンション名 | セザール第3梶ヶ谷 | 物件種別 | マンション |
| 販売戸数 | 全27戸 今回販売1戸 | 専有面積 | 57.29㎡ |
| バルコニー面積 | 5.57㎡ | 間取 | 2LDK+S |
| 建物構造 | RC造 (地上6階/地下1階)4階部分 | 権利形態 | 所有権 |
| 現況 | 空室 | 駐車場 | 敷地内にあり(有料) |
| 駐車場料金 | 15000円/月〜18000円/月 | 管理形態 | 全部委託 |
| 管理方法 | 通勤方式 | 管理費 | 14,410円/月 |
| 修繕積立金 | 16,671円/月 | 引渡し時期 | 相談 |
| 引渡し条件 | 現況渡し | 取引態様 | 媒介 |
| 設備 | ・エレベーター ・オートロック ・ペット飼育可 |
||
| こだわり項目 | 【リフォーム詳細】 ・システムキッチン新規交換 ・ユニットバス交換 ・洗面化粧台交換 ・トイレ交換 ・フローリング上貼り ・クロス張替 ・建具交換 ・和室を洋室に変更 ・吊戸の交換 ・キッチン幅拡大 ・エアコン各部屋設置可他 |
||
アクセスマップ