建築条件なし土地
8,480万円
| 所在地 | 川崎市麻生区百合丘2丁目 | ||
|---|---|---|---|
| 交通 | 小田急小田原線「百合ヶ丘」駅 徒歩7分 | ||
| 土地面積 | 166.83㎡ | 坪単価 | 168.1万円 |
| 建ぺい率 | 50% | 容積率 | 100% |
トップページウィズリアルティおすすめ物件川崎市麻生区の物件詳細
8,480万円
| 所在地 | 川崎市麻生区百合丘2丁目 | ||
|---|---|---|---|
| 交通 | 小田急小田原線「百合ヶ丘」駅 徒歩7分 | ||
| 土地面積 | 166.83㎡ | 坪単価 | 168.1万円 |
| 建ぺい率 | 50% | 容積率 | 100% |
ローンシミュレーション
価格8,480万円、頭金0円、借入額8,480万円(土地価格のみ)
・ご紹介金融機関:SBI新生銀行
・借入可能額:販売価格の 100%以内
・返済期間:最長 50年 ※50年ローンの場合、金利+0.1%
・金利(変動金利):年 0.780%
基準金利:1.950%
金利優遇:▲1.270%
50年ローン加算:+0.1%
→ 実行金利:0.780%
・事務取扱手数料:借入金額 × 2.2%
・その他費用について
・金利は 2026年1月時点のものです
実際の金利・返済額は、審査結果やお申込み時期により異なる場合があります

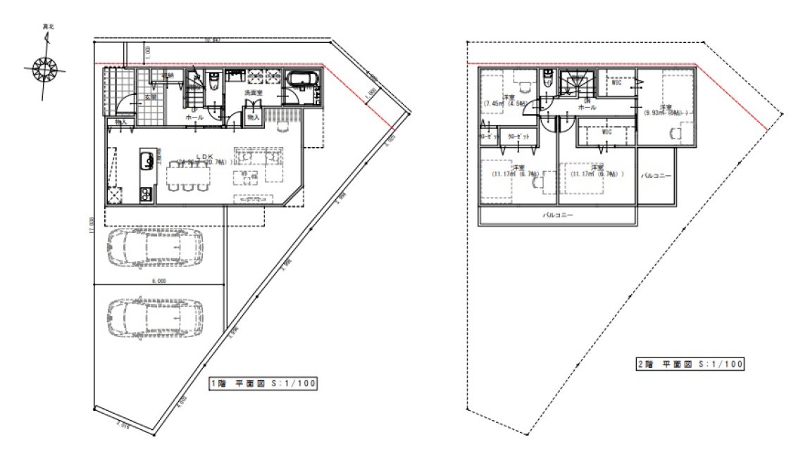
建築条件はありませんが、イメージが湧きやすいように参考プランをご用意しました。 三方角地を活かし、明るいLDKと効率的な動線を実現したプランです。日当たり・通風・プライバシーのバランスを考えた設計!
物件概要
| 所在地 | 川崎市麻生区百合丘2丁目 | ||
|---|---|---|---|
| 交通1 | 小田急小田原線「百合ヶ丘」駅 徒歩7分 | ||
| 交通2 | 小田急小田原線「新百合ヶ丘」駅 徒歩10分 | ||
| 交通3 | 小田急小田原線「読売ランド前」駅 徒歩24分 | ||
| 価格 | 8,480万円 | ||
| 物件名称 | 帰りたくなる家 百合ヶ丘/1区画 | 物件種別 | 建築条件なし土地 |
| 販売区画数 | 全1区画 今回販売1区画 | 土地面積 | 166.83㎡ |
| 権利形態 | 所有権 | 都市計画 | 市街化区域 |
| 地目 | 宅地 | 用途地域 | 第一種低層住専 |
| 建ぺい率 | 50% | 容積率 | 100% |
| 建築条件 | 建築条件なし | 現況 | 更地 |
| 引渡し時期 | 相談 | 取引態様 | 媒介 |
| 学区 | 百合丘小学校 / 西生田中学校 | ||
| 設備 | ・都市ガス | ||
アクセスマップ